Wsporniki końcowe
Wykonane z aluminium wsporniki końcowe wałków prowadzących zapewniają stabilne i precyzyjne zamocowanie, stanowiąc balans pomiędzy sztywnością a niską masą, co czyni je odpowiednim wyborem do układów o wysokiej dynamice i ograniczonej masie własnej.
ITAC
Wsporniki końcowe typu ITAC (seria podwójna kompaktowa)
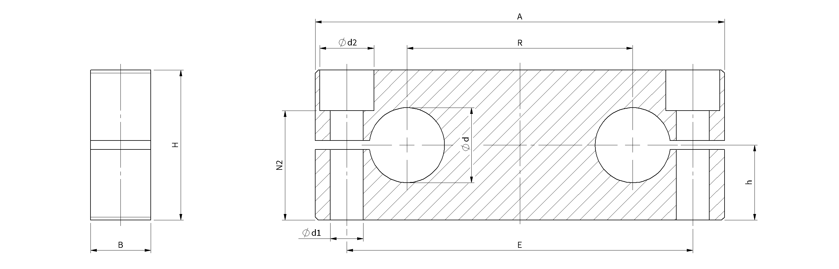
Rysunek techniczny wspornika końcowego typu ITAC

Tabela wymiarów wspornika końcowego typu ITAC
|
Typ
|
Ød
|
A
|
B
|
H
|
h
±0,015 |
R
±0,02 |
E
|
Ød1
|
Ød2
|
N2
|
Masa
[kg] |
|---|---|---|---|---|---|---|---|---|---|---|---|
|
ITAC-12
|
12
|
80
|
15
|
30
|
17
|
40
|
64
|
6,5
|
11
|
21,5
|
0,1
|
|
ITAC-16
|
16
|
96
|
15
|
35
|
19,5
|
52
|
80
|
6,6
|
11
|
26,5
|
0,15
|
|
ITAC-20
|
20
|
115
|
18
|
40
|
22
|
63
|
97
|
9
|
15
|
28
|
0,2
|
|
ITAC-25
|
25
|
136
|
20
|
50
|
27
|
75
|
115
|
11
|
18
|
36,5
|
0,25
|
|
ITAC-30
|
30
|
146
|
20
|
56
|
31
|
80
|
125
|
11
|
18
|
42,5
|
0,35
|
|
ITAC-40
|
40
|
184
|
25
|
70
|
38
|
97
|
160
|
13,5
|
50
|
54
|
0,65
|
|
ITAC-50
|
50
|
210
|
30
|
80
|
43
|
107
|
180
|
17,5
|
26
|
59
|
0,85
|
| Wszystkie wymiary w tabeli w [mm], jeśli nie podano innej jednostki. | |||||||||||
AlAluminium












